Beschrijving
‘Parkview loft’ - dit drie kamer appartement met lift en royaal balkon met middag- en avondzon is gelegen aan de statige Heemraadssingel, met haar monumentale allure en groene grandeur.
Wonen aan de Heemraadssingel betekent wonen op één van de mooiste en meest karaktervolle plekken van Rotterdam. De singel werd aangelegd rond het einde van de 19e en het begin van de 20e eeuw en vormt samen met de omliggende lanen een historisch stadsensemble met groene allure en statige architectuur. Het water, de brede bomenrijen en de rustige sfeer geven het gebied een bijna dorpse charme, terwijl de levendige stad zich letterlijk om de hoek bevindt. Hier geniet je van het beste van beide werelden: rust en groen, met winkels, horeca en openbaar vervoer op loopafstand. Kortom – een unieke combinatie van stedelijk wonen met stijl, ruimte en karakter.
Bij dit appartement zijn luxe, historie en modern comfort prachtig samengebracht.
De private lift brengt u rechtstreeks midden in de woning, waar de royale living met open keuken en terras direct georiënteerd is op de ondergaande zon. Hier vloeien binnen en buiten samen in een sfeervolle setting die uitnodigt tot stijlvol leven. Het absolute hoogtepunt is het riante dakterras van circa 35 m² met panoramisch uitzicht over de indrukwekkende skyline van Rotterdam – een waar stadsdecor dat dagelijks verandert met het licht.
Een prachtige combinatie van statigheid en eigentijdse luxe.
In 2020 is dit pand getransformeerd tot een exclusief woonproject met slechts vier high-end appartementen. Het resultaat: een uiterst verfijnde symbiose tussen authentieke details, hoogwaardige isolatie, hedendaagse technieken en een afwerkingsniveau dat tot in de kleinste details perfectie ademt.
De Heemraadssingel vormt met het aangrenzende Heemraadspark de groene long van de stad – een unieke plek waar stedelijke energie en serene natuur elkaar ontmoeten. Hier woont u te midden van de rijke historie, met directe verbinding naar zowel de hippe wijken als de bruisende binnenstad.
Indeling
Indeling
Begane grond
Statige marmeren entree met trap naar de verdieping en toegang tot de lift.
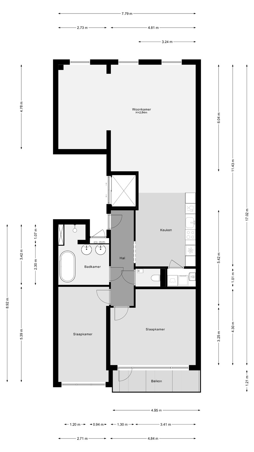
3e verdieping: royale gang met garderoberuimte, luxe toilet en toegang tot de sfeervolle ruime woonkamer met uitzicht over de Heemraadssingel. De luxe open keuken is voorzien van al het wenselijk apparatuur en een separate bergruimte voorzien van wasmachineaansluiting en opstelling Cv-ketel.
Aan de achterzijde van het appartement bevinden zich 2 volwaardige slaapkamers en de toegang tot het royale balkon. De luxe badkamer is voorzien van inloopdouche, bad en dubbele wastafel.
Kortom; een stijlvolle 3 kamer woning met private lift, royaal zonnig terras (middag- avondzon) gelegen in het hart van de stad omgeven door groen.
Bijzonderheden
Bijzonderheden
- Bouwjaar 1909
- Volledig gerenoveerd en gemoderniseerd in 2019/2020
- Energielabel A
- ca. 43 m² buitenruimte, waaronder ca. 35 m² dakterras. Zeer goed toegankelijk middels vaste trap
- Luxe afwerking
- Lift
- Centraal entree met videophone systeem
- Grote raampartijen
- Plafondhoogte van ca. 2.64 m
- Aan de achterzijde royaal balkon, westzijde
- Beschikbaar per direct
- Gemeubileerd